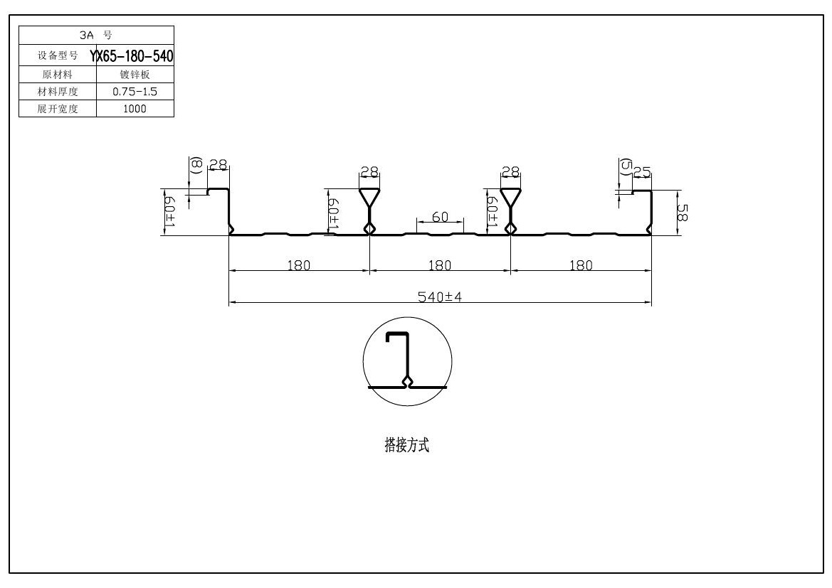
YX65-180-540 3A閉口樓承板
YX65-180-540 3A閉口樓承板,也叫壓型鋼板、鋼承板、鋼樓承板,是采用鍍鋅鋼板經輥壓冷彎成型,其截面成V型、U型、梯形或類似這幾種形狀的波形,主要用作性模板,也可被選為其他用途。
訂購熱線:152-5153-6295
YX65-180-540 3A閉口樓承板,也叫壓型鋼板、鋼承板、鋼樓承板,是采用鍍鋅鋼板經輥壓冷彎成型,其截面成V型、U型、梯形或類似這幾種形狀的波形,主要用作性模板,也可被選為其他用途。
一、YX65-180-540 3A閉口樓承板應用
產品廣泛用于電廠、電力設備公司、汽車展廳、鋼結構廠房、水泥庫房、鋼結構辦公室、機場候機樓、火車站、體育場館、音樂廳、大劇院、大型市、物流中心、奧運場館體育場館等鋼結構建筑。適應主體鋼結構快速施工的要求,能夠在短時間內提供堅定的功課平臺,并可采用多個樓層鋪設壓型鋼板,分層澆筑混凝土板的流水施工。
二、YX65-180-540 3A樓承板主要特點
1:適應主體鋼結構快速施工的要求,能夠在短時間內提供堅定的作業平臺,并可采用多個樓層鋪設壓型鋼板,分層澆筑混凝土板的流水施工。
2:在使用階段樓承板作為混凝土樓板的受拉鋼筋,也提高了樓板的剛度,節省了鋼筋和混凝土的用量。
3:壓型板表面壓紋使樓承板與混凝土之間產生大的結合力,使二者形成整體,配以加勁肋,使樓承板系統具有高強承載力。
4:在懸臂條件下,樓承板僅作為性模板。懸挑的長度可根據樓承板的截面特性來定。為了防止懸挑板的開裂,需在支座處依結構工程師的設計配上負筋。
三、YX65-180-540 3A閉口樓承板與普通開口板相比安裝技術優勢
1:閉口樓承板嚴格按照設計鋪板圖在工廠加工,排板順序均已編號,現場施工無需切割和補板,方便于鋼構公司現場安裝。
2:閉口樓承板排板時只需按跨距順排,與鋼梁順接時,由于板底平整,有足夠與鋼梁實接面積。因此不用處理可直接鋪過去(開口板因要避免與鋼梁虛搭而需切割補板)。
3:開口板在端口處應封堵板,以免澆筑混凝土進從板底開口漏漿,而閉口樓承板因腹板閉合而不用端頭堵板。
4:閉口樓承板因板底平整,無論與鋼梁橫搭還是順搭,均能與鋼梁上翼板充分結合,因此鋼梁上翼板頂面無需噴防火涂料。而開口型鋼承板與鋼梁之間具有空洞,需做肩塞補滿空洞。
5:閉口樓承板完全替代下層鋼筋,減少現場鋼筋制作量,可減輕現場勞動量,加快施工速度。同時取消原設計下層鋼筋,可為樓板中鋪設電線套管提供更大空間。
采用閉口樓承板與開口型鋼承板組合樓板相比,可以取消板底防火涂料,完全替代下層鋼筋,并可減薄樓板厚度,節省混凝土用量,閉口樓承板獨特的懸吊系統還可節約機電管道安裝成本。另外由于上述優勢可明顯加快加工速度,縮短工期。因此,采用閉口樓承板一方面可降低工程直接成本,另一方面又可降低工程管道費用。
80-540 3A
相關資訊
- 開口壓型鋼板在以下情況下可被廣泛采用
- 樓承板電鍍鋅的工藝流程介紹
- 挑選樓承板,構筑堅固建筑的關鍵一步
- 新手小白如何選擇適合自己的樓承板
- 常見的影響樓承板使用年限的因素
- 樓承板生產過程中需要注意的點有哪些
- 樓層板用什么鋼筋
- 樓承板可以當做平頂使用嗎
- 哪些情況下可以采用開口壓型鋼板
- 開口樓承板施工怎么留洞呢?
- 閉口樓承板鋪設鋼筋的要求
- 不同型號的鋼筋桁架樓承板有哪些不同
- 鋼筋桁架樓承板厚怎么選擇呢?
- 鋼筋桁架樓承板施工需要使用支模板嗎?
- 600型開口樓承板與690型開口樓承板的區別
- 鋼筋桁架樓承板每立方米鋼筋的計算方法
- 樓承板被鋼筋桁架樓承板替代的原因
- 樓承板加工會遇到哪些問題
- 樓承板施工誤差對工程有哪些影響
- 常州樓承板施工需要滿足的四個標準




